
Pirkko Salminen
myyntipäällikkö, kiinteistönvälittäjä, LKV, LVV
pirkko.salminen@kiinteistomaailma.fi
puh. 040 1433 244
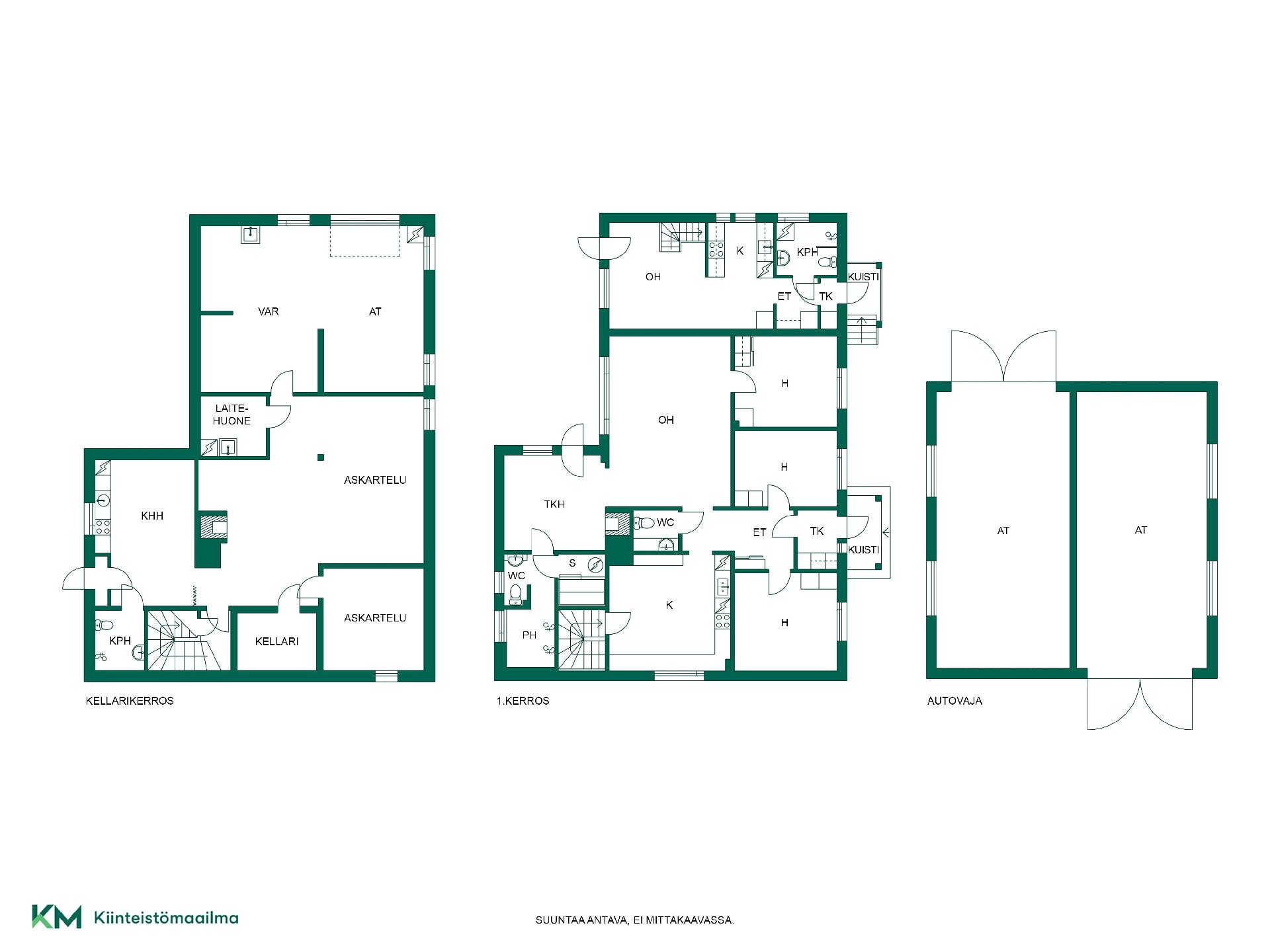
Myynnissä tilava ja monipuolinen mahdollisuus, paritalo vanhassa Tapanilassa. Tämä kokonaisuus on palvellut samaa perhettä ja odottaa uutta tarinaa vapautuen nopeasti uudelle omistajalle! Talossa on kaksi asuntoa omilla sisäänkäynneillä: Isompi asunto A tarjoaa 2023 remontoidut keittiön, pesuhuoneen (+ wc), saunan Harvian puukiukaalla ja erillisen wc:n sekä kolme makuuhuonetta ja takkahuoneen, mistä käynti puutarhaan. Pienempi asunto B on yksiö, mikä kaipaa jo remonttia keittiöön ja kylpyhuoneeseen, tähän asuntoon on rakennettu parvi ja parveke 2023. Isommasta asunnosta on suora kulku kellaritiloihin, missä runsaasti moneen käyttöön soveltuvaa säilytys- ja harrastustilaa, sekä tallikäyttöön sopivaa tilaa. Kellarissa on myös tilava apukeittiö, mistä käynti puutarhaan ja 2020 remontoitu kylpyhuone. Talo sijaitsee isolla kirvesvarsitontilla arvostetulla ja idyllisellä pientaloalueella. Autotallirakennus sijaitsee yhteisenä tonttien rajalla, sisällä tallissa on väliseinä. Suloinen leikkimökki puutarhassa odottaa uutta leikkijää. Alueena Tapanila on rauhallinen ja vehreä pientaloalue, mutta arjen palvelut ovat silti lähellä mm. lähikaupat, koulut, päiväkodit sekä erikoisliikkeitä, kahvila, R-kioski ja Tapanilan urheilukeskus. Tapanilan juna-asemalle on vain muutaman minuutin kävelymatka ja juna vie 16 minuuttia Rautatientorille ja 13 minuuttia Lentoasemalle, myös useita bussilinjoja kulkee lähellä. Talo on juuri kuntotarkastettu! Sovitaanko näyttö paikan päälle? Ota yhteyttä välittäjään.