
Noora Melavirta
Myyntijohtaja, kiinteistönvälittäjä, LKV, LVV, KiAT
noora.melavirta@kiinteistomaailma.fi
puh. 050 587 4296
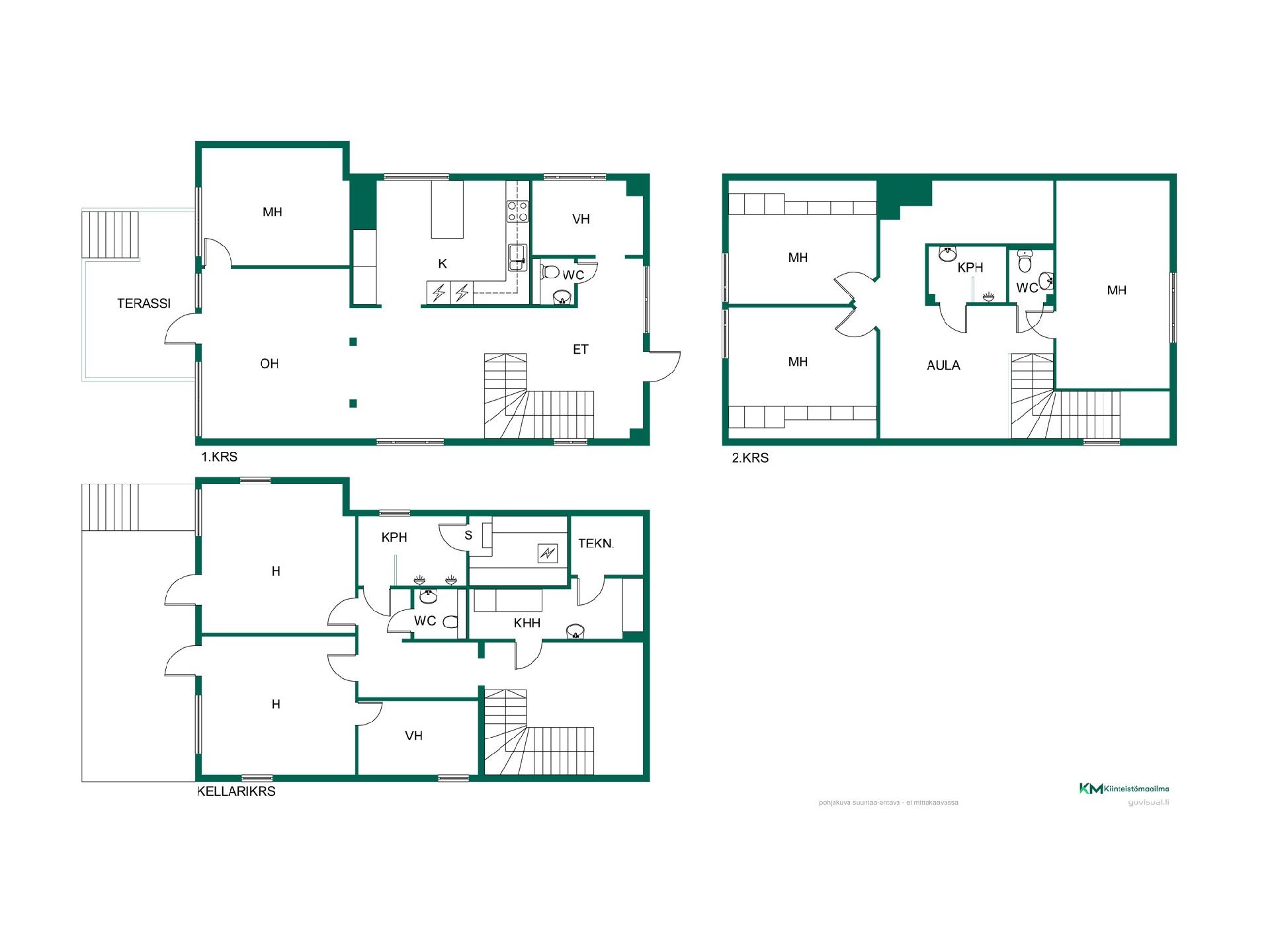
Herttoniemen helmi! Tarjolla saneerattu ja laajennettu, alun perin vuonna 1947 valmistunut rintamamiestalo joka on saanut uuden elämän tämän päivän vaatimusten mukaisesti. Vuonna 2025 valmistunut ja lopputarkastettu kokonaisuus on toteutettu nykyrakennustavan mukaan. Talotekniikka, rakenteet ja asumismukavuus vastaavat modernin kodin odotuksia, kuitenkaan alkuperäistä tunnelmaa unohtamatta. Nyt tarjolla on harvinainen mahdollisuus asua nykyaikaisessa puutalossa yhdellä Helsingin halutuimmista ja arvostetuimmista alueista, Vanhassa Herttoniemessä. Alue hurmaa vehreydellään sekä kylämäisellä tunnelmallaan. Täällä yhdistyvät rauhallinen asuminen, vahva yhteisöllisyys ja erinomaiset palvelut sekä liikenneyhteydet aivan lähietäisyydellä. Sinua odottaa upea ja tilava omakotitalo, jossa on mahdollisuus jopa kuuteen makuuhuoneeseen. Asuinpinta-ala on 168 m² ja kokonaispinta-ala 255 m², tarjoten runsaasti tilaa isommankin perheen tarpeisiin. Täällä tunnet asuvasi omassa rauhassa, luonnon ja vehreyden ympäröimänä. silti vain lyhyen matkan päässä kaupungin sykkeestä. Pihapiiri tarjoaa loistavat puitteet puutarhanhoitoon, lasten leikkeihin tai rentoihin kesäiltoihin grillikatoksen tunnelmassa. Paikka poreammeellekin on valmiina omassa rauhassaan, viherkaton suojissa. Tämä koti sopii täydellisesti perheelle, joka arvostaa tilaa, huolettomuutta ja muuttovalmista asumista sekä Vanhan Herttoniemen ainutlaatuista, lämminhenkistä ympäristöä. Lähellä ihana leipomo Bolle, Way Cafe ja ravintolat. Turvalliset reitit lähikouluihin odottaa myös pientä kulkijaa. Tervetuloa ihastumaan, tämä koti on koettava paikan päällä!