
Leena Pakarinen
kiinteistönvälittäjä, kiinteistönvälittäjä, LKV, LVV, KiAT
leena.pakarinen@kiinteistomaailma.fi
puh. 0400 579297
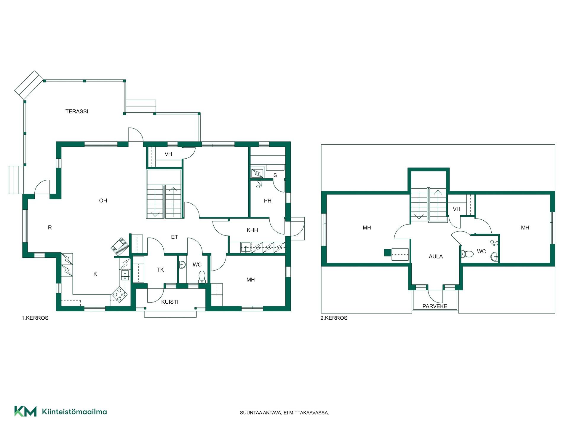
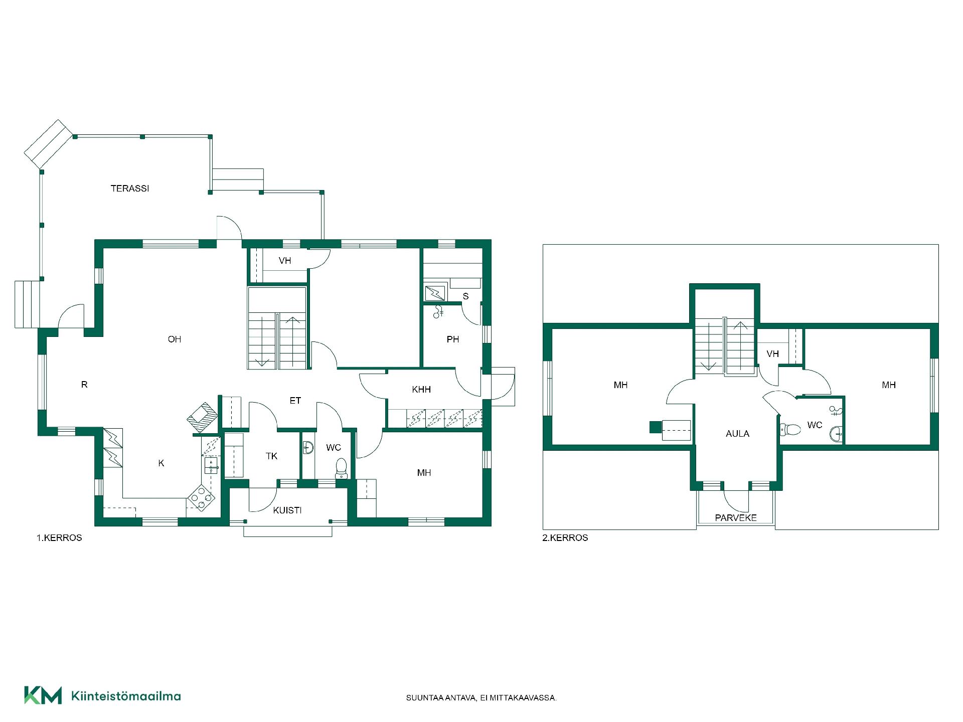
Kaunis ja hyvin pidetty koti halutulla Töyrynummen asuinalueella. Tämän kodin asuintilat sijoittuvat kahteen kerrokseen. Yläkerrassa on kaksi makuuhuonetta, vaatehuone sekä tilava aula, joka soveltuu erinomaisesti esimerkiksi työpisteeksi. Yläkerrasta löytyy myös erillinen kylpyhuone. Alakerta on avara ja valoisa ja tilan tuntua lisää normaalia korkeampi huonekorkeus. Yhtenäinen keittiö ja olohuone muodostavat viihtyisän kokonaisuuden perheen yhteisiin hetkiin. Alakerrassa on lisäksi kaksi makuuhuonetta, vaatehuone, wc, sauna- ja pesutilat sekä kodinhoitohuone, josta on käynti suoraan ulos pihalle. Talon julkisivu on hiljattain maalattu ja katolle on asennettu aurinkopaneelit parantamaan energiatehokkuutta. Myös kodin sisätiloissa on uusittu pintoja ja kodinkoneita kattavasti. Piha-alue on helppohoitoinen ja suunniteltu kokonaisuus, jossa on tilaa lasten leikkeihin ja peleihin. Suojaisalla ja hyvin hoidetulla pihalla pääset nauttimaan kesäpäivistä ja auringosta isolla terassilla, ihailemaan kukkaloistoa sekä hyödyntämään oman pihan antimia. Kodissa on sähkölämmitys ja koko alakerrassa on miellyttävä lattialämmitys. Asumiskustannukset ovat edulliset aurinkopaneelien ansiosta. Talviaikaan lämmitystä tukevat varaava takka sekä ilmalämpöpumppu. Autot mahtuvat hyvin pihalle ja erilliset piharakennukset tarjoavat runsaasti varastotilaa. Sijainti on erinomainen: päiväkodit ja koulut sijaitsevat lähellä ja bussipysäkit sekä ruokakauppa löytyvät aivan vierestä. Ota yhteyttä ja sovitaan esittelyaika tähän kauniiseen kotiin!