
Tomi Suvinen
, Yrittäjä, tj, kiinteistönvälittäjä, LKV, LVV, KTK
tomi.suvinen@kiinteistomaailma.fi
puh. 0443355135
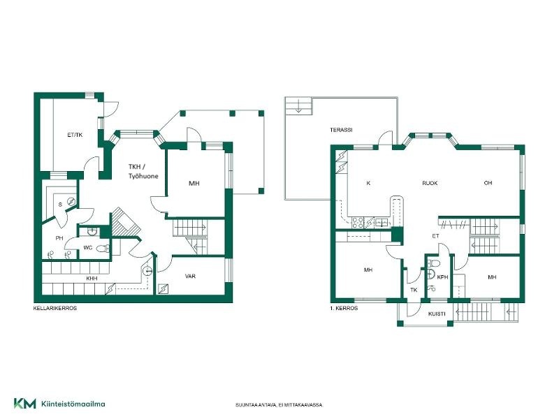
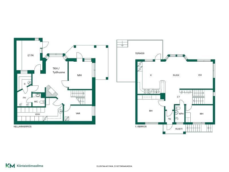
Supersuositulta vanhan Tapanilan alueelta, vuonna 1990 valmistunut kuntotarkastettu, erinomaisesti pidetty omakotitalo isommallekin perheelle! Koti sijaitsee keskeisellä lapsiperheiden suosimalla alueella, jossa asuntoa ympäröi kivenheiton päässä koulut, päiväkodit, puistot, Tapanilan erä sekä vanhan tapanilan upeat maisemat. Juna-asemalle kävelet alle 10 minuutissa, josta keskustaan tai lentokentälle reilussa vartissa. Kokonaisalaltaan talo on noin 185m2, tontti yli 700m2 ja koti kahdessa kerroksessa, jossa huoneita pystyy helposti lisäämään ja muokkaamaan. Pinnoiltaan koti on siistissä kunnossa, joista viimeisimpänä tehty aivan upeat kylpyhuone- ja saunatilat. Iso vehreä piha-alue ympäröi taloa ja tontti on muutenkin aivan upea rinteessä, päättyvän tien varrella.