
Tiina Kallio (Ent.Roponen)
yrittäjä, ylempi kiinteistönvälittäjä, YKV, LKV, LVV, KiAT
tiina.kallio@kiinteistomaailma.fi
puh. 040 763 3713
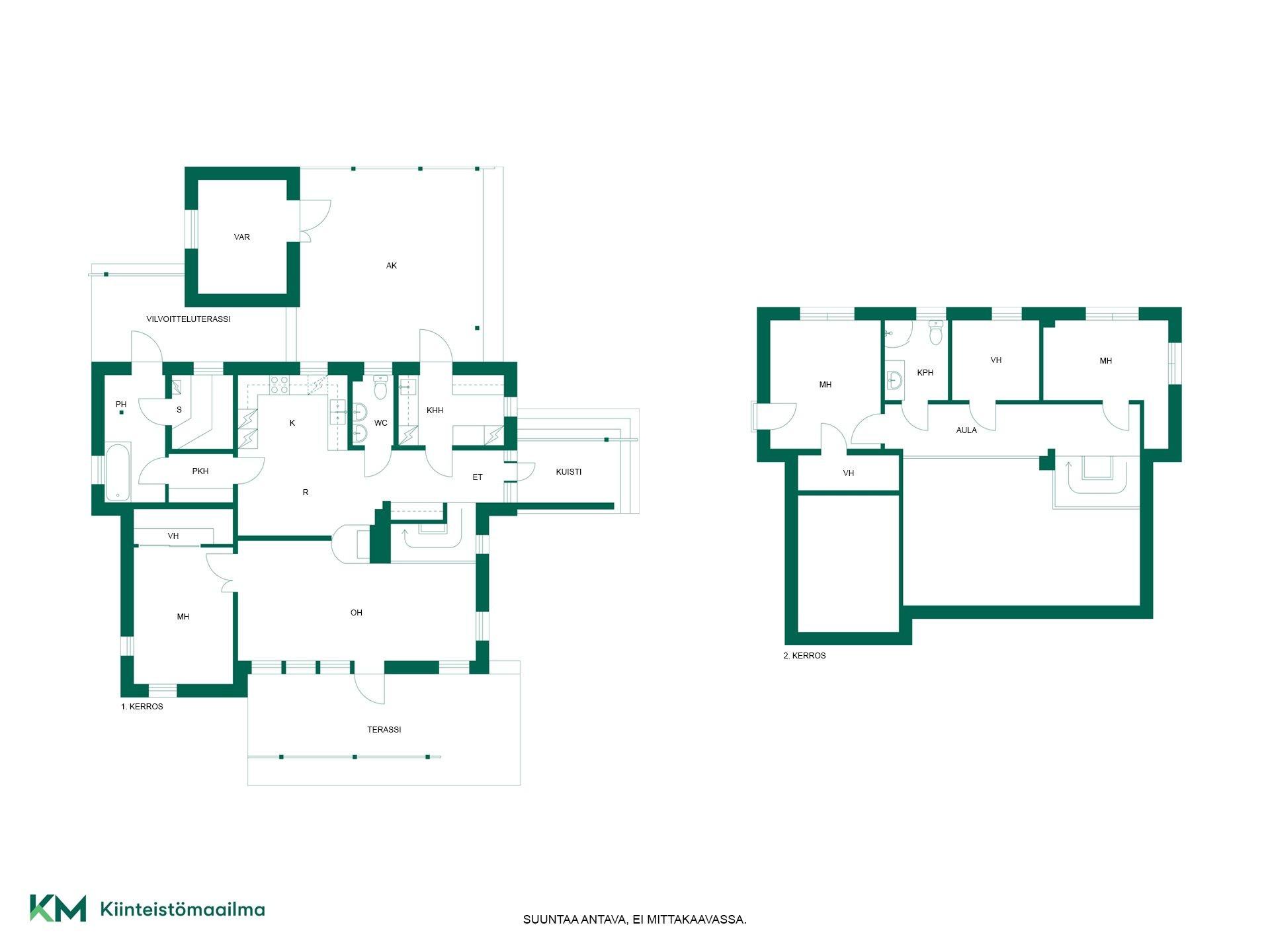
Moderni koti merellisessä Laajasalossa! Tämä laadukas kivitalo sijaitsee rauhallisella ja luonnonläheisellä alueella Laajasalon Hevossalmessa. Kodin ehdoton sydän on avara keittiön ja olohuoneen yhtenäinen tila. Olohuoneessa kiertoilmatakka tuo lämpöä ja viihtyisyyttä. Olohuoneen suuret ikkunat avautuvat lasitetulle, n. 14 m2 terassille tilaan, jossa voi nauttia olosta lähestulkoon ympäri vuoden. Terassilta on käynti vehreälle eteläpihalle, jonne aurinko paistaa suurimman osan päivästä. Aamuauringosta voi nauttia saunan yhteydessä olevalla pienemmällä terassilla. Keittiö on suunniteltu toimivaksi ja tyylikkääksi: Kivitasot, Siemensin kodinkoneet ja moderni ilme tekevät arjesta sujuvaa. Kodinhoitohuoneessa on ulkokulku ja kuraeteinen, jotka helpottavat käytännön asioita. Kylpyhuoneessa on kaksi suihkua, kylpyamme ja oma uloskäynti - ratkaisuja, jotka tuovat mukavuutta ja tilaa arkeen. Alakerrassa on päämakuuhuone, jonka yhteydessä tilava walk-in closet. Yläkerrasta löytyvät kaksi muuta makuuhuonetta, joista toisen yhteydessä on oma vaatehuone. Lisäksi yläkerrassa on kylpyhuone sekä erillinen, erittäin tilava vaatehuone. Kokonaisuuden kruunaa kahden auton autokatos. Laajasalo on Helsingin merellinen helmi. Rauhallinen ja luonnonläheinen, mutta palvelut ja tuleva Kruunusillat-raitiotieyhteys tuovat keskustan lähelle. Vapaa-aika saa uuden merkityksen, kun sekä Hevossalmen että Furuvikin uimaranta sekä lähialueen venesatamat ovat vain kävelymatkan päässä. Kesäpäivät rannalla, veneily saaristossa – you name it! Tämä koti on sinulle, joka arvostat laatua, tilaa ja merellistä tunnelmaa vain lyhyen matkan päässä Helsingin keskustasta.