
Siru Vaara
Kiinteistönvälittäjä, kaupanvahvistaja, YKV, LKV, LVV, KED
siru.vaara@kiinteistomaailma.fi
puh. 040 6261 062
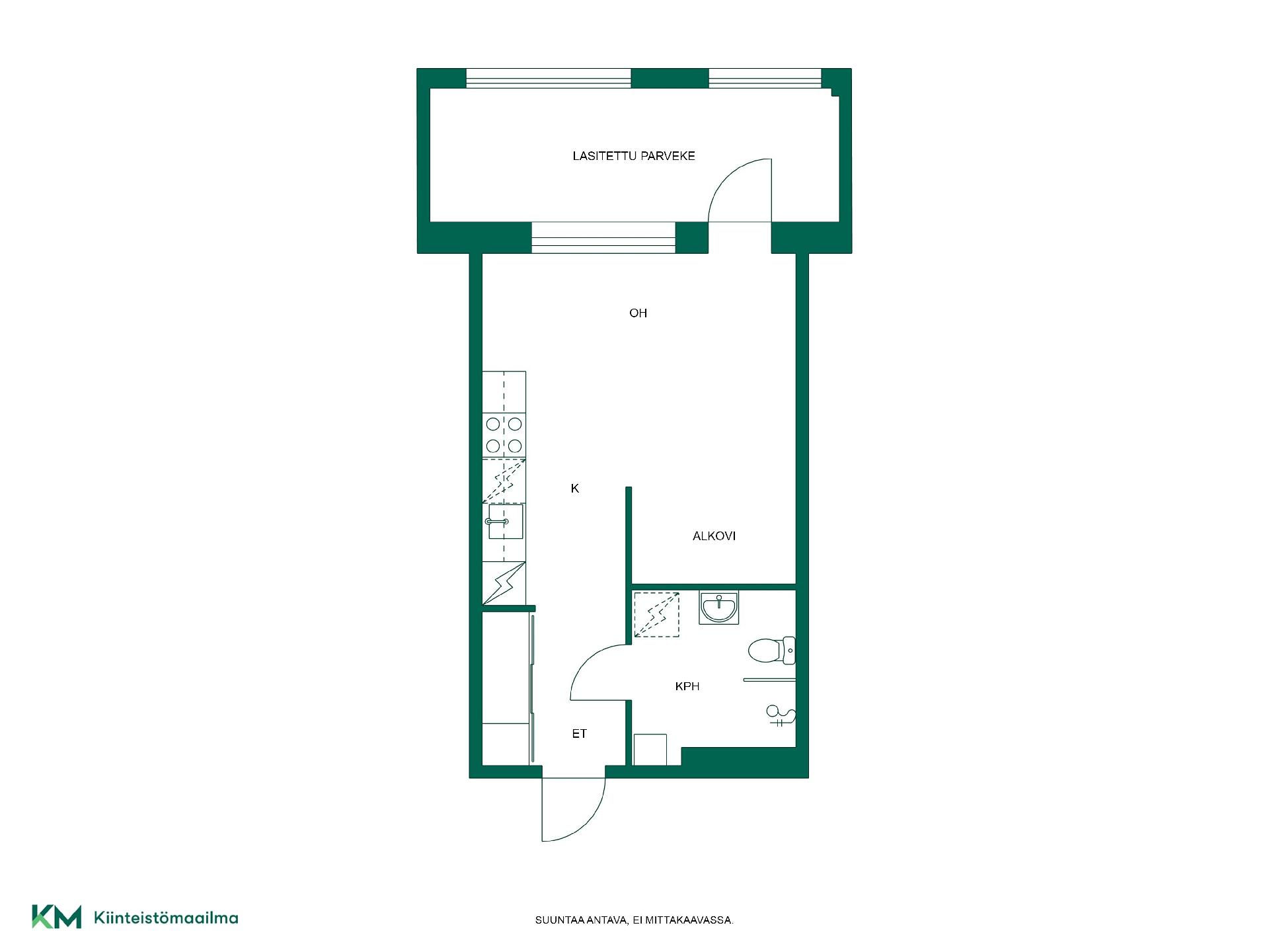
Suuren, koko huoneiston levyisen lasitetun parvekkeen omaava asunto korkealla, toiseksi ylimässä 7/8 kerroksessa! Heti kaupanteosta vapaa huoneisto vuonna 2019 valmistuneessa, modernissa ja vankasti omalla tontillaan seisovassa talossa. Kodikas, kompakti asunto jossa on sisustamista muakavasti rytmittävä makuualkovi ja jonka pinnat ovat lähes uudenveroisessa kunnossa. Koko huoneiston levyinen lasitettu eteläparveke toimii kuin toisena olohuoneena aikaisesta keväästä myöhään syksyyn! Mainio sijainti Kalasataman kupeessa, jossa REDI:n kattavat palvelut ja yhteydet ovat vain kivenheiton päässä kotiovelta. Lyhyen kävelymatkan säteellä sijaitsevat alueen lukuisat lounasravintolat samoin kuin Mustikkamaa ulkoilureitteineen. Erinomainen soveltuvuus paitsi ensiasunnoksi, kaupunkitukikohdaksi, tai sijoitukseen - Pääset muuttamaan sisään (tai käynnistämään vuokraustoiminnan) heti kaupanteosta. Tervetuloa esittelyyn!