Tarjouskauppa

Lenita Hopea-Sjöstedt
myyntineuvottelija , KiAT
lenita.hopea-sjostedt@kiinteistomaailma.fi
puh. 050 596 4206
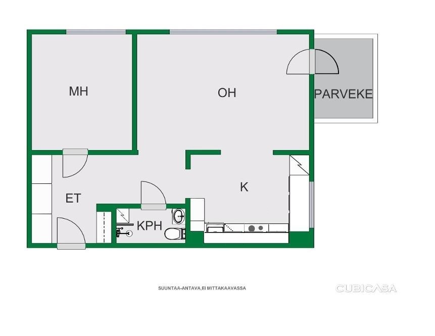
Pajamäessä on luonnonvalossa kylpevä koti Poutamäentiellä. Raide-Jokeri tuo uuden ulottuvuuden liikkumiseen mm.lentokentälle. Tämä muuttovalmis koti on tunnelmaltaan kaunis ja yhtenäinen kokonaisuus, joka hurmaa valoisuudellaan ja rauhallisella sijainnillaan. Hissitalon 6/8. kerroksen valoisaan kulmahuoneistoon pääset esteettömästi. Lasitetulta parvekkeelta upeat näkymät yli vehreän Pajamäen. Verhoja ei tarvitse vaan näkymä on kuin taulu. Vuonna 2015 tehty remontti: keittiö avattu olohuoneeseen, uusitut kodinkoneet ja kaapistot, sekä tyylikäs Kirenan liukuovikaapisto eteisessä. Uskomattoman toimiva koti, kaksio järkevillä neliöillä, et siis maksa turhista neliöistä. Hyvin hoidettu taloyhtiö, jossa asukkaat voivat hyödyntää takapihan viljelylaatikoita – luontoarvot ovat osa arkea. Erinomaiset yhteydet: Helsingin keskustaan pääsee junalla noin 19 minuutissa ja bussilla noin 30 minuutissa. Raide-Jokerilla: pysäkeiltä pääsee sujuvasti Itäkeskuksen, Leppävaaran, Otaniemen ja Keilaniemen suuntaan. Luonto lähellä – vieressä sijaitseva Patterimäki on luonnonsuojelualue, jossa kulkevat kauniit luontopolut ja historialliset bunkkerit. Monipuoliset liikuntamahdollisuudet: ulkoilureitit, puistot ja urheilupalvelut aivan lähietäisyydellä. Yhteisöllinen ja rauhallinen alue, jossa arvostetaan luonnonläheisyyttä ja 50-luvun arkkitehtuuria. Tämä koti sopii erinomaisesti niin mm. ensiasunnon ostajalle, pienelle perheelle kuin rauhaa ja laatua arvostavalle. Pajamäki tarjoaa ainutlaatuisen yhdistelmän luonnonläheisyyttä ja urbaania mukavuutta – tervetuloa ihastumaan!