Myytävät asunnotHelsinkiKluuvi
KT1407742HelsinkiEUR1150000Helsinki Kruununhaka
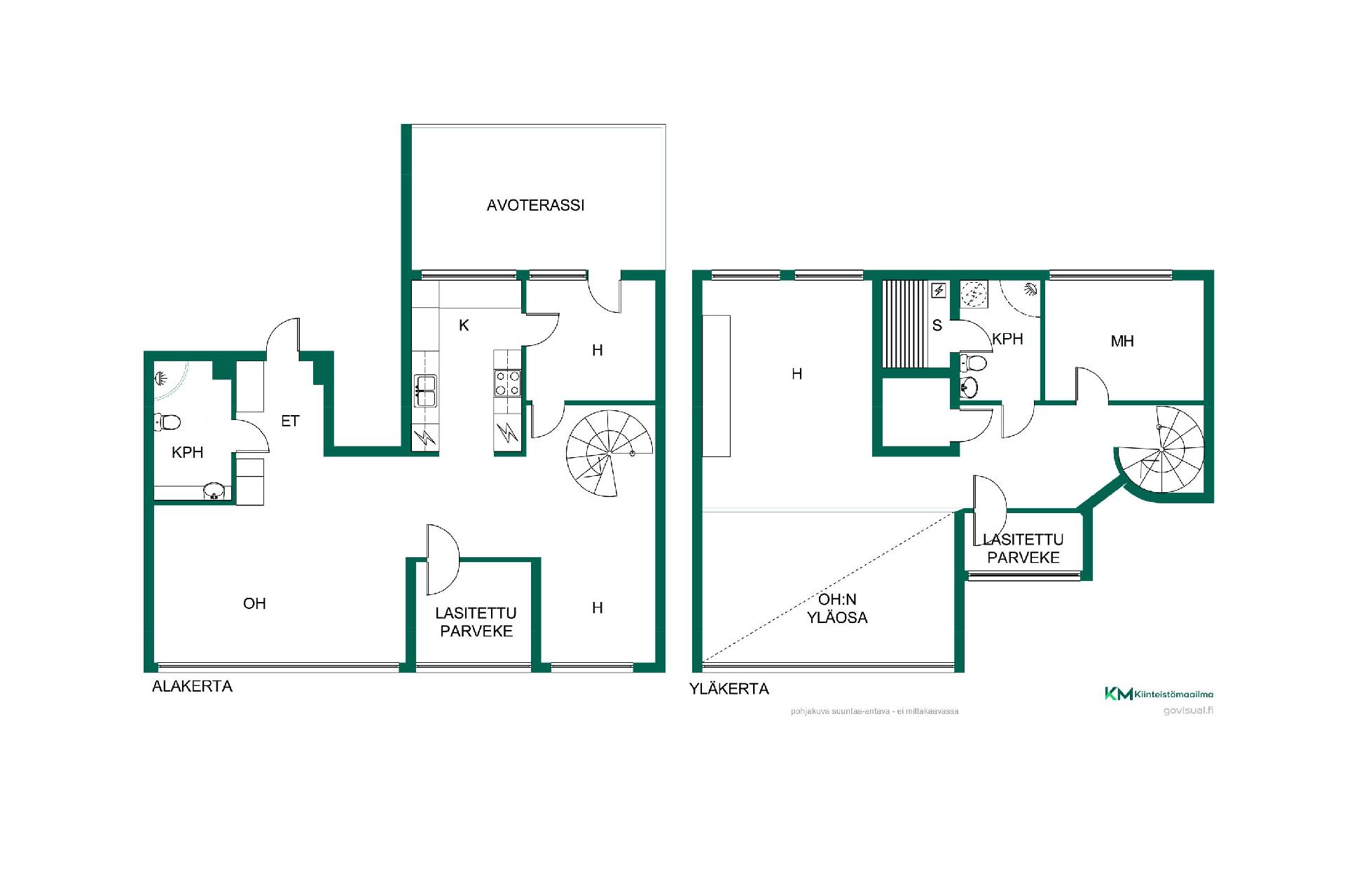
127,5 / 127,53-4h, k, kph/wc, s, eril. wc, 2x lasit.parv., kattoterassi

Mikonkatu 11, Kluuvi, Helsinki

1 150 000,00 €Velaton hinta
876 412,53 €Myyntihinta
127.5Mikonkatu 11, Kluuvi, Helsinki
Asunnon pohjakuva
Mikonkatu 11, Kluuvi, Helsinki
Mikonkatu 11, Kluuvi, Helsinki
Sisäpihan uudisrakennus, jonka ylimmissä kerroksissa myytävä huoneisto sijaitsee, on valmistunut v. 2012.
Sisäpihan uudisrakennus, jonka ylimmissä kerroksissa myytävä huoneisto sijaitsee, on valmistunut v. 2012.
Mikonkatu 11, Kluuvi, Helsinki
Kahden kerroksen korkuinen ja koko olohuoneen levyinen ikkunaseinä antaa huoneistolle ainutlaatuisen ilmeen.
Kahden kerroksen korkuinen ja koko olohuoneen levyinen ikkunaseinä antaa huoneistolle ainutlaatuisen ilmeen.
Mikonkatu 11, Kluuvi, Helsinki
Mikonkatu 11, Kluuvi, Helsinki
Ruokailutila on myös kahden kerroksen korkuinen. Sen iso ikkuna on lämmitettävissä selektiivilasissa olevien sähkövastusten avulla, kuten olohuoneen isot ikkunatkin.
Ruokailutila on myös kahden kerroksen korkuinen. Sen iso ikkuna on lämmitettävissä selektiivilasissa olevien sähkövastusten avulla, kuten olohuoneen isot ikkunatkin.
Mikonkatu 11, Kluuvi, Helsinki
Alemmassa kerroksessa on lasitettu parveke (avoterassin lisäksi).
Alemmassa kerroksessa on lasitettu parveke (avoterassin lisäksi).
Mikonkatu 11, Kluuvi, Helsinki
Mikonkatu 11, Kluuvi, Helsinki
Työhuone /vierashuone.
Työhuone /vierashuone.
Mikonkatu 11, Kluuvi, Helsinki
Kesäisin lisää viihtyisyyttä tuo iso avoterassi. Sen lisäksi huoneistossa on kaksi lasitettua parveketta, yksi molemmissa kerroksissa.
Kesäisin lisää viihtyisyyttä tuo iso avoterassi. Sen lisäksi huoneistossa on kaksi lasitettua parveketta, yksi molemmissa kerroksissa.
Mikonkatu 11, Kluuvi, Helsinki
Mikonkatu 11, Kluuvi, Helsinki
Mikonkatu 11, Kluuvi, Helsinki
Mikonkatu 11, Kluuvi, Helsinki
Mikonkatu 11, Kluuvi, Helsinki
Mikonkatu 11, Kluuvi, Helsinki
Mikonkatu 11, Kluuvi, Helsinki
Mikonkatu 11, Kluuvi, Helsinki
Kolmas parveke on toisessa kerroksessa.
Kolmas parveke on toisessa kerroksessa.
Ylemmän kerroksen kylpyhuoneen yhteydessä on ikkunallinen sauna.
Ylemmän kerroksen kylpyhuoneen yhteydessä on ikkunallinen sauna.
Mikonkatu 11, Kluuvi, Helsinki
Alemman kerroksen wc.
Alemman kerroksen wc.
Sisäpihanäkymää, rapusta ulos tullessa.
Sisäpihanäkymää, rapusta ulos tullessa.
Käynti sisäpihalle on joko Mikonkadun puoleisesta porttikongista tai Vuorikadun suunnasta.
Käynti sisäpihalle on joko Mikonkadun puoleisesta porttikongista tai Vuorikadun suunnasta.
Mikonkatu 11, Kluuvi, Helsinki
Autohalliin pääsee suoraan hissillä huoneistokerroksesta.
Autohalliin pääsee suoraan hissillä huoneistokerroksesta.
Mikonkatu 11, Kluuvi, Helsinki
Asunnon pohjakuva
Mikonkatu 11, Kluuvi, Helsinki
Mikonkatu 11, Kluuvi, Helsinki
Sisäpihan uudisrakennus, jonka ylimmissä kerroksissa myytävä huoneisto sijaitsee, on valmistunut v. 2012.
Sisäpihan uudisrakennus, jonka ylimmissä kerroksissa myytävä huoneisto sijaitsee, on valmistunut v. 2012.
Mikonkatu 11, Kluuvi, Helsinki
Kahden kerroksen korkuinen ja koko olohuoneen levyinen ikkunaseinä antaa huoneistolle ainutlaatuisen ilmeen.
Kahden kerroksen korkuinen ja koko olohuoneen levyinen ikkunaseinä antaa huoneistolle ainutlaatuisen ilmeen.
Mikonkatu 11, Kluuvi, Helsinki
Mikonkatu 11, Kluuvi, Helsinki
Ruokailutila on myös kahden kerroksen korkuinen. Sen iso ikkuna on lämmitettävissä selektiivilasissa olevien sähkövastusten avulla, kuten olohuoneen isot ikkunatkin.
Ruokailutila on myös kahden kerroksen korkuinen. Sen iso ikkuna on lämmitettävissä selektiivilasissa olevien sähkövastusten avulla, kuten olohuoneen isot ikkunatkin.
Mikonkatu 11, Kluuvi, Helsinki
Alemmassa kerroksessa on lasitettu parveke (avoterassin lisäksi).
Alemmassa kerroksessa on lasitettu parveke (avoterassin lisäksi).
Mikonkatu 11, Kluuvi, Helsinki
Mikonkatu 11, Kluuvi, Helsinki
Työhuone /vierashuone.
Työhuone /vierashuone.
Mikonkatu 11, Kluuvi, Helsinki
Kesäisin lisää viihtyisyyttä tuo iso avoterassi. Sen lisäksi huoneistossa on kaksi lasitettua parveketta, yksi molemmissa kerroksissa.
Kesäisin lisää viihtyisyyttä tuo iso avoterassi. Sen lisäksi huoneistossa on kaksi lasitettua parveketta, yksi molemmissa kerroksissa.
Mikonkatu 11, Kluuvi, Helsinki
Mikonkatu 11, Kluuvi, Helsinki
Mikonkatu 11, Kluuvi, Helsinki
Mikonkatu 11, Kluuvi, Helsinki
Mikonkatu 11, Kluuvi, Helsinki
Mikonkatu 11, Kluuvi, Helsinki
Mikonkatu 11, Kluuvi, Helsinki
Mikonkatu 11, Kluuvi, Helsinki
Kolmas parveke on toisessa kerroksessa.
Kolmas parveke on toisessa kerroksessa.
Ylemmän kerroksen kylpyhuoneen yhteydessä on ikkunallinen sauna.
Ylemmän kerroksen kylpyhuoneen yhteydessä on ikkunallinen sauna.
Mikonkatu 11, Kluuvi, Helsinki
Alemman kerroksen wc.
Alemman kerroksen wc.
Sisäpihanäkymää, rapusta ulos tullessa.
Sisäpihanäkymää, rapusta ulos tullessa.
Käynti sisäpihalle on joko Mikonkadun puoleisesta porttikongista tai Vuorikadun suunnasta.
Käynti sisäpihalle on joko Mikonkadun puoleisesta porttikongista tai Vuorikadun suunnasta.
Mikonkatu 11, Kluuvi, Helsinki
Autohalliin pääsee suoraan hissillä huoneistokerroksesta.
Autohalliin pääsee suoraan hissillä huoneistokerroksesta.
Mikonkatu 11, Kluuvi, Helsinki

    Uniikki kaksikerroksinen ydinkeskustakoti Ateneumin naapurista urbaania asumista rakastaville! Asunto on heti vapaa! Soveltuu parhaiten maksimissaan kolmelle asukkaalle. Sisäpihan rauhassa 7.-8. kerroksen huoneistossa on kattoterassi ja kaksi lasitettua parveketta. Asumismukavuutta lisää lattialämmitys, huoneistokohtainen ilmastointi ja jäähdytys sekä oma sauna. Autohallipaikka myynnissä myös erillisenä. Autohallista on esteetön kulku huoneistoon. Autopaikassa sähköauton latausmahdollisuus. Asunto Oy Mikonkatu 11:een kuuluu kaksi rakennusta, kadun varrella oleva kauppias Lackmanin v. 1912 rakennuttama palatsimainen punatiilinen arvotalo ja sen tyylikkään sisäpihan suojassa sata vuotta myöhemmin v. 2012 rakennettu moderni talo, jossa myytävä koti sijaitsee. Käynti kadulta huoneistoon asti on täysin esteetön. Sijainti on huikea, yhtiö on aivan Ateneumin naapurissa, lähellä myös Kansallisteatteri. Aleksanterinkadun, Esplanadien ja Stockmanin palvelut ovat muutamien minuuttien kävelymatkan päässä kotioveltasi. Läheinen Kaisaniemen puistoalue tarjoaa vehreät lenkkeilymahdollisuudet. Metron käyttäjälle sijainti on huikea, yliopiston pysäkille on matkaa satakunta metriä ja parissa minuutissa kävelet ratikka- ja bussipysäkeille sekä rautatieasemalle. Tervetuloa, sovi oma yksityisesittelysi !

    Sovi esittely

    Seuraava esittelyaika ei ole vielä sovittu.
    Ota yhteyttä ja sovi henkilökohtainen esittely!

    Myymälä

    Kiinteistömaailma Helsinki Kruununhaka(KK-Neliöt Oy)Liisankatu 12, 00170 Helsinki050 300 9985
    Lue lisää

    Hae lainaa vaivattomasti

    Täytä lainahakemus ja pääset ensimmäisten joukossa keskustelemaan sinulle sopivasta asuntolainasta Danske Bankin asiantuntijan kanssa. Hakeminen ei sido sinua mihinkään.
    Hae lainaa

    Asunnon tiedot

    Kohdenumero1407742
    TalotyyppiKerrostalo
    SijaintiMikonkatu 11, 00100 Helsinki
    KaupunginosaKluuvi
    Huoneluku3-4h, k, kph/wc, s, eril. wc, 2x lasit.parv., kattoterassi
    Asuinpinta-ala127.5 m², yhtiöjärjestyksen mukaan
    Kokonaispinta-ala127.5 m²
    Kerros7-8/8
    HissiKyllä
    Näkymät asunnostaUniikit sisäpiha- ja kattonäkymät
    Ikkunoiden suunnatlänsi, itä
    ParvekeKyllä, huoneistossa on kaksi lasitettua parveketta ja avoin kattoterassi
    Parvekkeen suuntaLänsi, itä
    AutopaikkaMyynnissä on myös erilliseen hintaan sähkölatausmahdollisuudella varustettu autohallipaikka hissimatkan päässä.
    EnergiatehokkuusluokkaD2013
    Huoneiston kuntoHyvä
    VapautuminenHeti
    Lisätietoja huoneistostaTalo 2/ myytävä huoneisto: ASUNNOSSA on vesikiertoinen lattialämmitys (lämmönlähteenä kaukolämpö). Lattialämmitystä säädetään huonekohtaisista termostaateista. ASUNNOSSA on jatkuvatoiminen huoneistokohtainen, lämmön talteenotolla varustettu ilmanvaihto. Ohjaus omasta termostaatista. ASUNNOSSA on jäähdytys (kaukokylmä), säädettävissä molemmissa kerroksissa. ASUNNON ikkunoiden eristyslasissa on selektiivikalvo, joka myötävaikuttaa huoneiston pysymiseen talvella lämpimänä. Olohuoneen ja ruokailutilan isoissa ikkunapinnoissa on lämpövastukset, joiden sähkölämmitys erillisellä termostaatilla. ASUNNOSSA automaattinen sammutusjärjestelmä (ns sprinklerjärjestelmä). ASUNNOSSA myös ovipuhelinjärjestelmä.

    Varustus

    KeittiöSiemensin kodinkoneet: leveä jääkaappi/pakastin/jääpalakone (rst), erillisuuni (rst) ja induktiokeittotaso, liesituuletin (rasva- ja aktiivihiilisuodatin), mikroaaltouuni (rst), integroitu astianpesukone, kiinteät valaisimet. Kaapistot Novart.
    SaniteettitilatKYLPYH. ALAKERTA: suihkukulma, allas ja allaskaappi, peilikaappi, korkea kaappi, wc-istuin, bidé. KYLPYH. YLÄKERTA: suihkukulma, allas ja allaskaappi, peilikaappi, wc-istuin, bidé, kuivaava pyykinpesuk. IDO Kylpyhuone Oy:n saniteettiposliinit, valumarmoriset allastasot ja Showerama-suihkukulmat. SAUNA: Helo-kiuas. Lattialämmitys kylpyhuoneissa.
    OlohuoneKiinteä kaapisto
    Muuta kauppaan kuuluvaaKiinteät valaisimet, sälekaihtimet, pystylamellikaihtimet (sekä valko- että ruskeasävyisinä), yläkerran makuuhuoneiden komerot, yläkerran "kodinhoitokaapisto" (sis. mm silityslaudan), eteisen kaapistot, pyykinpesukone, huoneistokohtainen ilmanvaihtokone, markiisi.
    LaajakaistayhteysHuoneistossa on laajakaistaisen tiedonsiirron mahdollistava yleiskaapelointijärjestelmä.
    TelevisioliitäntäKaapeli-TV liittymä (Sonera).
    Säilytystilat asunnossaKellarikomero

    Tilat, materiaalit ja varustus

    Keittiön lattiaValkomattalakattu saarniparketti
    Keittiön seinätMaalattu
    Kylpyhuoneen lattiaLaatta
    Kylpyhuoneen seinätLaatta
    Olohuoneen lattiaValkomattalakattu saarniparketti
    Olohuoneen seinätMaalattu
    Makuuhuoneen lattiaValkomattalakattu saarniparketti
    Makuuhuoneen seinätMaalattu

    Sijainti kartalla

    Hinta- ja asumiskustannukset

    Myyntihinta876 412,53 €
    Velkaosuus273 587,47 €
    Velaton hinta1 150 000,00 €
    Hoitovastike854,25 €/kk
    Rahoitusvastike3 187,50 €/kk
    Yhtiövastike yhteensä4 041,75 €/kk
    VesimaksuVesimaksuennakko 20€/hlö/kk, tasaus käytön perusteella. Huoneistokohtaiset vesimittarit. Osakasmuutoksen yhteydessä lukema ilmoitettava is.toimistolle.
    Lisätietoja kustannuksistaLämmön ja viilennyksen kulutuksesta vastaavat talojen 1 ja 2 osakkeenomistajat talokohtaisesti siten, että sekä lämmitykseen että viilennykseen kuluvan energian vuotuisten kulujen osalta suoritetaan tasauslaskutus kunkin vuoden lopussa jolloin laskutetaan tai hyvitetään osakkaita pinta-alan mukaisesti. Vastike voidaan myös jakaa ja periä erillisenä hoito- ja energiavastikkeena.

    Taloyhtiö

    Taloyhtiön nimiAsunto Oy Mikonkatu 11 Helsinki
    TalotyyppiKerrostalo
    Tontin pinta-ala1739 m²
    Tontin omistusOma
    Rakennusvuosi2012
    RakennusmateriaaliKivi/metalli
    LämmitysjärjestelmäKaukolämpö, vesikeskuslämmitys
    KattotyyppiHarjakatto
    KatePelti
    Kiinteistön hoidosta vastaaHuoltoyhtiö, Kiinteistöhuolto Määttä Oy
    Taloyhtiössä onHissi, kaapeli-TV, laajakaista. RAKENNUS 1: kellarissa ulkoiluväline- ja polkupyörävarastot, jätehuoneet, irtainvarastot, P-kerroksessa harrastustila, 7. kerroksessa kuivaushuoneet, irtainvarastot, Huom! Mainittu vain asukaskäytössä olevat tilat. RAKENNUS 2: 1. krs: talovarasto, lastenvaunuvarasto, irtainvarastot, 2. krs: saunaosasto.
    Rakennukseen tehdyt korjaukset2025 Katon huoltokorjauksia. 2024 Mikonkadun puolen aulan graniittilattioiden puhdistus ja suojapinnoitus.2023 Mikonkadun puoleisten liiketilojen ikkunapuitteiden maalauskorjaus, 2022 Huoneistojen välisiä äänimittauksia (liittyy 10-vuotisvastuu tarkastuksiin) ei toimenpiteitä, huoneistojen palovaroittimien uusinta, ilmanvaihtokanavien puhdistus ja ilmamäärien säätö, autohallin betonikannen saumojen tiivistys, Mikonkadun puoleisen katon lumiesteiden asennus, PTS-Suunnitelma. 2021 Autopaikkojen sähköistys latauspistokkeita varten. Kaikkiin autohallin autopaikkoihin laitetaan sähköjohto latauspistokkeille. 2020 D-talon saunaremontti. Sisäpihan uudisrakennus on valmistunut 2012. Huoltokirjan mukaiset toimenpiteet on suoritettu. Rakentaja on tehnyt takuutöitä ja 10-vuotisvastuuseen liittyviä korjaustöitä.
    Tiedossa olevat korjauksetPäätetty hanke: Parvekkeen C 27 ulkopuolen viimeistely. Suunnitellut korjaukset: piha-alueiden kunnostukset, A-talon eteläpuolen ikkunapuitteiden huoltotarpeen selvitys, parvekkeiden kuntotarkastus ja mahdolliset korjaukset, Kuntoarvio ja PTS:n päivitys. LVI-ohjausjärjestelmän uusinta.
    Ostajalle aiheutuvat kustannuksetEi tiedossa olevia päätettyjä kustannuksia.
    LunastusoikeusLunastusoikeus yhtiöllä Lunastusoikeus autohallipaikoissa (ei koske huoneiston oston yhteydessä ostettavaa autohallipaikkaa), ks. yhtiöjärjestys 7§, lunastusoikeus osakkailla Lunastusoikeus autohallipaikoissa (ei koske huoneiston oston yhteydessä ostettavaa autohallipaikkaa), ks. yhtiöjärjestys 7§
    MuutaTaloyhtiö muodostuu kahdesta rakennuksesta. RAKENNUS 17/ Lackmanin talo (A-C) on rakennettu 1913 ja saneerattu 2011. Lackmanin talon pinta-ala 5.956 m2. RAKENNUS 2 / uudisrakennus sisäpihalla (D) on rakennettu 2012. Uudisrakennuksen pinta-ala 3.963 m2. Katso talokohtaiset vastuut yhtiöjärjestys 6§. Velkaosuudet jaettu talojen välillä.
    Huoneistot yhteensä58 kpl
    Asuinhuoneistojen kokonaispinta-ala4424 m²
    Liikehuoneistot4 kpl
    Liikehuoneistojen kokonaispinta-ala368.5 m²
    OsakeluetteloOsakeluettelo on siirretty huoneistotietojärjestelmään

    Liikenneyhteydet ja palvelut

    LähipalvelutYdinkeskustan palvelut lyhyen kävelyetäisyyden päässä. (n. 0.2 km), Kansallisteatteri (n. 0.25 km), Ateneum (n. 0.15 km)
    KoulutKaisaniemen ala-aste (n. 0.35 km), Ressun lukio (n. 0.57 km), Kruununhaan yläaste (n. 0.6 km)
    PäiväkotiPäiväkoti Wilhola (n. 0.25 km), Päiväkoti Lintukoto (n. 0.28 km), Päiväkoti Vironniemi (n. 0.5 km), Daghemmet Sedmigradsky småbarnskola (n. 0.6 km), Daghemmet Alexia/Päiväkoti Aleksi (n. 0.6 km)
    LiikenneyhteydetRaitiovaunu (n. 0.05 km), Bussi (n. 0.1 km), Rautatieaseman ja Kaisaniemen metroasemat (n. 0.25 km), Rautatieasema/ junat (n. 0.25 km)
    RuokakaupatStockman Herkku, Alepa, S-Market (n. 0.2 km)

    Lisätiedot

    AsuntomyymäläKiinteistömaailma Helsinki Kruununhaka
    KK-Neliöt Oy, Liisankatu 12, 00170, Helsinki
    Puh. 050 300 9985
    Lähetä sähköpostia
    VälittäjäOma välittäjäsi tai MAX HANHIKE, LKV, p. ja whatsapp: 044 244 5860, sp: max.hanhike@km.fi, Kiinteistömaailma KK-Neliöt Oy LKV
    Ilmoitusta on katsottu863 kertaa
    Vastuullista välittämistä