
Maarit Pietarila
Yrittäjä, tj, kiinteistönvälittäjä, LKV, LVV, alalla 28 vuotta
maarit.pietarila@kiinteistomaailma.fi
puh. 050 386 6690
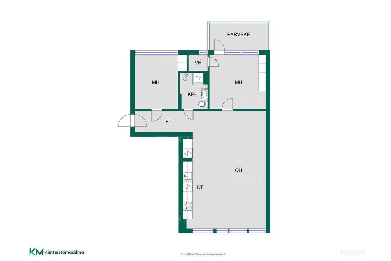
Tyylikäs, hyväkuntoinen ja valoisa parvekkeellinen läpitalon huoneisto loistavalla sijainnilla lähellä merenrantaa ja keskustan palveluja sekä hyviä kulkuyhteyksiä! Porraskäytävässä on hissi ja kulku asuntoon on esteetön. Tämän asunnon tonttiosuus on lunastettu omaksi! Upea, mateeriaaleiltaan ja kiinteiltä kalusteiltaan laadukas, huoneisto remontoitiin täysin vuonna 2023, jolloin seinät ja katot maalattiin, parkettilattiat uusittiin, keittiö kalusteineen sekä kylpyhuoneen pinnat ja kalusteet uusittiin. Avaran ja valoisan olohuoneen yhteydessä on hyvin varusteltu, mittatilaustyönä tehty, laadukas ja kotimainen Lumia keittiö. Lumia on tehnyt myös päämakuuhuoneen kiinteät kaapistot ja kiinteän työtason. Makuuhuoneet sijaitsevat rauhallisen sisäpihan puolella. Tilava 9 m2:n lasitettu parveke sisäpihan ja ilta-auringon suuntaan tuo mukavuutta ja lisätilaa asumiseen aikaisesta keväästä myöhäiseen syksyyn! Säilytystilat ovat hyvät - kaapistojen ja vaatehuoneen lisäksi asunnolle kuuluu ullakko- ja kellarikomero. Koulut sijaitsevat lähellä - mm. ranskalainen Jules Verne -koulu on vieressä ja International School of Helsinki n.800m päässä. Hietalahden kauppahallin ja Bulevardin lukuisat putiikit, kahvilat ja ravintolat ovat aivan kulman takana. Bussi- ja raitiovaunupysäkit ovat lähellä. Metroasemalle ja Kampin kauppakeskukseen on lyhyt kävelymatka. Autolla pääset hetkessä Länsiväylälle. Kotiovelta pääset kätevästi merenrannan ulkoilureiteille! Taloyhtiö on hyvin hoidettu ja taloa on laajasti remontoitu, mm. putkiremontti on tehty v.2003. Talossa on sauna. Taloyhtiö vuokraa autopaikkoja jonotusperusteisesti. Olethan yhteydessä, niin sovitaan yksityisesittelystä!