
Klaus Huhtala
kiinteistönvälittäjä, Partner, (Klaus Huhtala LKV Oy, 3549011-8), LKV
klaus.huhtala@kiinteistomaailma.fi
puh. 0443219870
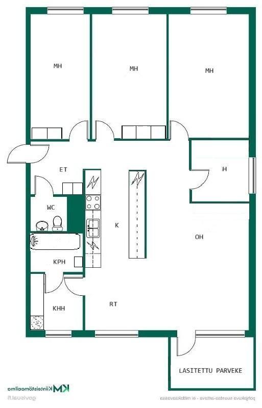
Tervetuloa ihanaan Itä-Pasilaan, tähän aikaansa edellä olevaan arkkitehtuurin ihmeeseen! Nyt tuli myyntiin hyvin hoidetusta yhtiöstä todella kiva perheasunto. Tässä asunnossa on niin loistava pohja, kuin avarat näkymät joka ikkunasta. Kodista löytyy uusittu tilava ja kaunis kylpy-ja kodinhoitohuone, erillinen wc, 3 tilavaa makuuhuonetta, työ-/vierashuone ja avara olohuone-keittiö yhdistelmä. Aamukahvit voit juoda tilavalla, lasitetulla parvekkeella. Taloyhtiö on hoidettu järjestelmällisesti, täällä on tehty paljon isoja peruskorjauksia: on upeasti peruskorjatut hissit, ja yhtiössä on uusittu myös saunaosasto, joiden lopputulos on upea. Autoilijat on myös otettu huomioon, taloyhtiössä on paljon vuokrattavia autopaikkoja. Sijainti on vertaansa vailla: vieressä on niin upeat ulkoilualueet Vallilanlaakso ja Keskuspuisto, kuin kaikki palvelut tarjoava Tripla sekä paljon kehittynyt Konepajan alue. Myös juna-asema, monipuoliset bussi- ja sporayhteydet, löytyvät ihan vierestä. Itä-Pasila on Helsingin salattu helmi, tervetuloa tutustumaan ja ihastumaan tähän loistavaan kotiin! Avainsanat: pasila, itä-pasila, neliö, viisiö, parveke, autopaikka Myynnistä täysimääräisesti vastaa välitysliike: Kiinteistönvälitys Klaus Huhtala LKV Oy Y-tunnus: 3549011-8 Välitysliike toimii itsenäisenä välittäjä-yrittäjänä yhteistyösopimuksella Kiinteistömaailma Lauttasaari | Amuletti Asunnot Oy:n kanssa. Amuletti Asunnot Oy ei vastaa toimeksiannon hoitamisesta.