
Christian Helin
yrittäjä, toimitusjohtaja, LKV, KiAT
christian.helin@kiinteistomaailma.fi
puh. 0503236378
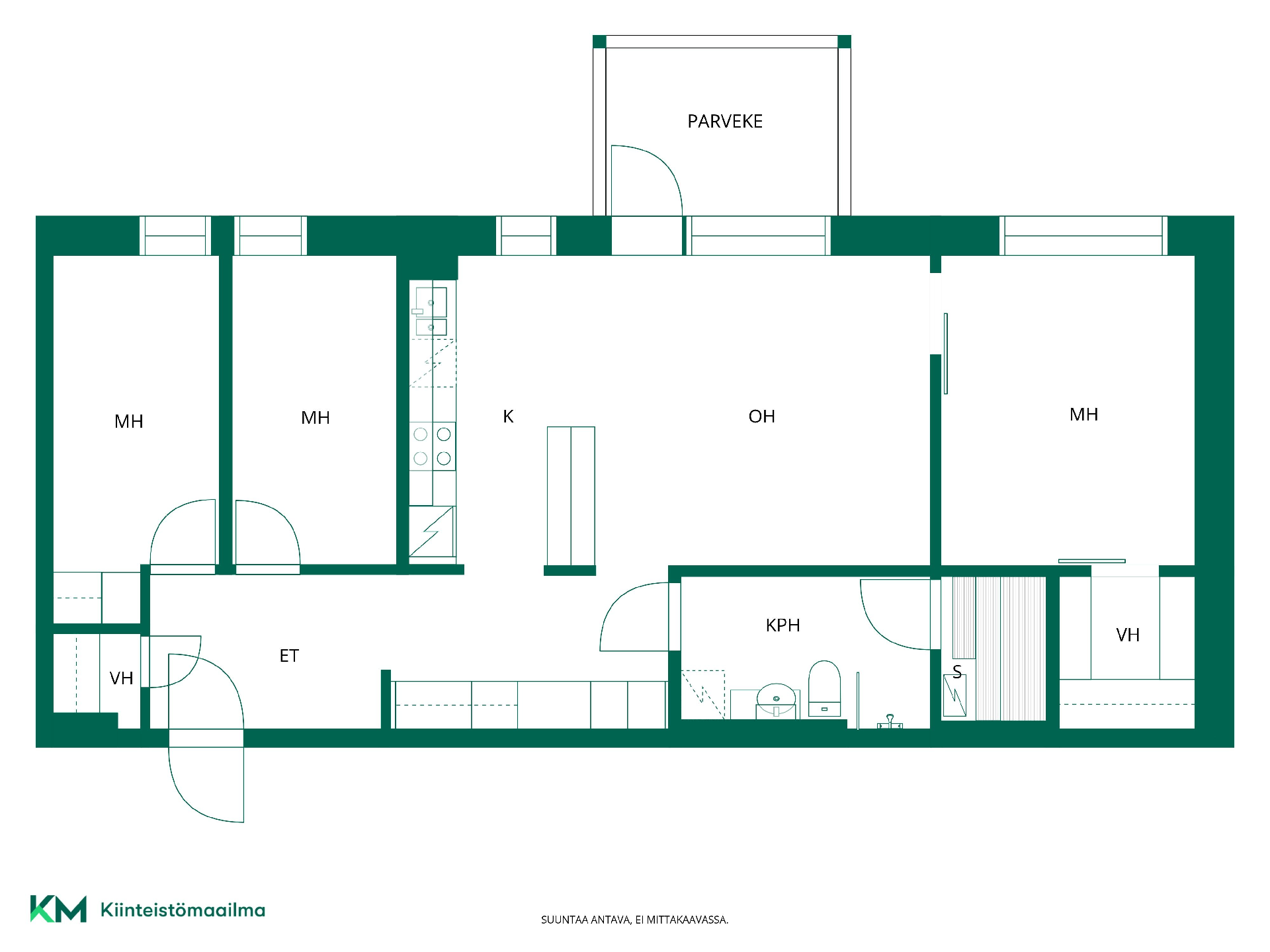
Viihtyisä kolmen makuuhuoneen asunto suositun Konepajan sydämessä. Tämä asunto tarjoaa avaran ja viihtyisän kokonaisuuden: olohuone, avokeittiö ja ruokailutila muodostavat kodin keskipisteen, josta on suora kulku tilavalle lasitetulle terassiparvekkeelle. Asunnosta ja parvekkeelta avautuu näkymät viihtyisälle sisäpihalle. Kolme makuuhuonetta tuovat joustavuutta arkeen, tarvitset sitten makuuhuoneita tai työtilaa. Suurimman makuuhuoneen yhteydessä on myös oma iso vaatehuone. Lattiat ovat kauttaaltaan kaunista tammiparkettia, seinät raikkaan valkoiset. Tilava kylpyhuone ja oma sauna tekevät arjesta mukavaa. Säilytystilaa löytyy runsaasti niin kaapistoista kuin vaatehuoneista. Yhtiö on valmistunut 2010 ja hoitovastike on varsin maltillinen 4,20€/m2. Alakerrasta löytyy monikäyttöinen kerhotila, pesutupa, kuivaushuone, lastenvaunu- ja pyörävarasto. Lisäksi mahdollisuus ostaa autopaikka erikseen alakerran autohallista. Konepaja ja Pasila tarjoavat monipuoliset palvelut ja erinomaiset liikenneyhteydet – junat, bussit ja ratikat ovat kävelyetäisyydellä. Triplan kauppakeskus, padelkentät, biljardisalit, elokuvateatteri, pienpanimot ym palvelut ovat aivan nurkan takana. Keskeisestä sijainnista huolimatta asut omassa rauhassa. Plussana perheen nuorimmille Linnanmäki löytyy myös lähistöltä joten voit hyödyntää kausihupia helposti vaikka joka päivä. Tervetuloa tutustumaan!