Myytävät asunnotOittiOitti
OT1407575OittiEUR99000Riihimäki
88,34h, k, psh, s, vh, et

Töytynmäentie 6, Oitti, Hausjärvi

99 000,00 €Velaton hinta
99 000,00 €Myyntihinta
88.3Töytynmäentie 6, Oitti, Hausjärvi
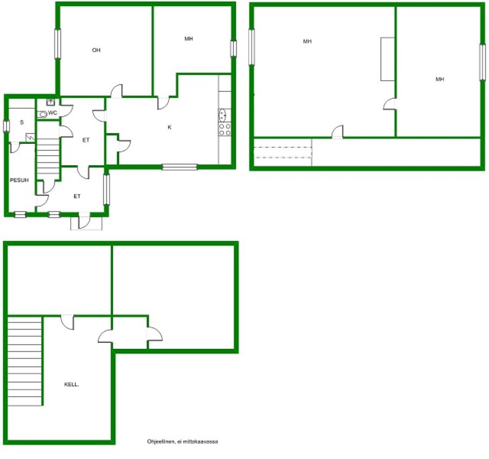
Asunnon pohjakuva
Töytynmäentie 6, Oitti, Hausjärvi
Keittiö
Keittiö
Oma tontti on kooltaan 1435 m²
Oma tontti on kooltaan 1435 m²
Eteinen. Lattia on laminaattia
Eteinen. Lattia on laminaattia
Näkymä kuistilta eteisaulaan
Näkymä kuistilta eteisaulaan
Kulku kuistilta pesutiloihin
Kulku kuistilta pesutiloihin
Keittiö
Keittiö
Keittiö
Keittiö
Keittiössä on v. 2020 asennettu ilmalämpöpumppu
Keittiössä on v. 2020 asennettu ilmalämpöpumppu
Varaava takka asennettiin v. 2018
Varaava takka asennettiin v. 2018
Kylpyhuoneessa on ikkuna, oikealla paikka pesukoneelle
Kylpyhuoneessa on ikkuna, oikealla paikka pesukoneelle
Pesutilat on vesieristetty ja laatoitettu 2023
Pesutilat on vesieristetty ja laatoitettu 2023
Puusauna päivitettiin 2023
Puusauna päivitettiin 2023
Erillisen wc:n remontti valmistui 2024
Erillisen wc:n remontti valmistui 2024
Olohuone
Olohuone
Olohuone
Olohuone
Yläkertaan johtava portaikko
Yläkertaan johtava portaikko
Mh 2
Mh 2
Mh 2
Mh 2
Mh 3
Mh 3
Mh 3
Mh 3
Kesän vehreyttä
Kesän vehreyttä
Pihaan rakennettiin toinen terassi v. 2024
Pihaan rakennettiin toinen terassi v. 2024
Hyvin hoidetun talon vesikate uusittiin  2007 ja julkisivu huoltomaalattiin 2019
Hyvin hoidetun talon vesikate uusittiin 2007 ja julkisivu huoltomaalattiin 2019
Asunnon pohjakuva
Töytynmäentie 6, Oitti, Hausjärvi
Keittiö
Keittiö
Oma tontti on kooltaan 1435 m²
Oma tontti on kooltaan 1435 m²
Eteinen. Lattia on laminaattia
Eteinen. Lattia on laminaattia
Näkymä kuistilta eteisaulaan
Näkymä kuistilta eteisaulaan
Kulku kuistilta pesutiloihin
Kulku kuistilta pesutiloihin
Keittiö
Keittiö
Keittiö
Keittiö
Keittiössä on v. 2020 asennettu ilmalämpöpumppu
Keittiössä on v. 2020 asennettu ilmalämpöpumppu
Varaava takka asennettiin v. 2018
Varaava takka asennettiin v. 2018
Kylpyhuoneessa on ikkuna, oikealla paikka pesukoneelle
Kylpyhuoneessa on ikkuna, oikealla paikka pesukoneelle
Pesutilat on vesieristetty ja laatoitettu 2023
Pesutilat on vesieristetty ja laatoitettu 2023
Puusauna päivitettiin 2023
Puusauna päivitettiin 2023
Erillisen wc:n remontti valmistui 2024
Erillisen wc:n remontti valmistui 2024
Olohuone
Olohuone
Olohuone
Olohuone
Yläkertaan johtava portaikko
Yläkertaan johtava portaikko
Mh 2
Mh 2
Mh 2
Mh 2
Mh 3
Mh 3
Mh 3
Mh 3
Kesän vehreyttä
Kesän vehreyttä
Pihaan rakennettiin toinen terassi v. 2024
Pihaan rakennettiin toinen terassi v. 2024
Hyvin hoidetun talon vesikate uusittiin  2007 ja julkisivu huoltomaalattiin 2019
Hyvin hoidetun talon vesikate uusittiin 2007 ja julkisivu huoltomaalattiin 2019
kiinteistönvälittäjä, LKV, KiAT Auvo Vira

Auvo Vira

kiinteistönvälittäjä, LKV, KiAT

auvo.vira@kiinteistomaailma.fi

puh. 050 325 8382

    Tunnelmallinen koti ja suuri tontti Oitissa Tämä viihtyisä 1,5-kerroksinen neliö tarjoaa rauhallista asumista Hausjärvellä. Lähellä sijaitsevat koulu ja juna-asema takaavat sujuvan arjen palveluiden äärellä. Koti hurmaa tunnelmallaan. Varaava takka ja ilmalämpöpumppu pitävät huolen mukavasta lämmöstä. Tilat jakautuvat selkeästi, ja oma puusauna tarjoaa rentouttavia hetkiä päivän päätteeksi. Valoisa koti on yhdistelmä käytännöllisyyttä ja mukavuutta. Talon yhteydessä on varastotilaa, ja omalla 1435 m² tontilla riittää tilaa pihapiirin askareisiin. Tule ihastumaan tähän kodikkaaseen kokonaisuuteen – ota yhteyttä ja sovitaan näyttö!

    Sovi esittely

    Seuraava esittelyaika ei ole vielä sovittu.
    Ota yhteyttä ja sovi henkilökohtainen esittely!

    Myymälä

    Kiinteistömaailma Riihimäki(Saranen LKV Oy)Keskuskatu 13, 11100 Riihimäki045 216 4472
    Lue lisää

    Kiinteistön tiedot

    Kohdenumero1407575
    TalotyyppiOmakotitalo
    RakennusmateriaaliPuu
    SijaintiTöytynmäentie 6, 12100 Oitti
    KaupunginosaOitti
    Huoneluku4h, k, psh, s, vh, et
    Asuinpinta-ala88.3 m², ei tarkastusmitattu
    ParvekeEi
    TerassiKyllä. Talon sisäänkäynnin vieressä kattamaton terassi. Pihassa kattamaton patio.
    Käyttöönottovuosi1958
    KäyttövesiKunnan vesijohto
    JätevesihuoltoKunnan
    Lämmitysjärjestelmä ja sen kuntoSähkölämmitys
    Puulämmitys
    Lämmönjakotapa: Ilmalämpöpumppu
    Lämmönjakotavat: Ilmalämpöpumppu, Sähköpatterilämmitys
    IlmanvaihtojärjestelmäPainovoimainen
    KattotyyppiHarjakatto
    KatePeltikate
    Tehdyt kunnostukset ja peruskorjauksetIkkunat uusittu 2001, ulkolaudoitus ja tuulensuojalevyt 2005, vesikatto aluskatteineen ja ruoteineen uusittu 2007, kattokourut ja syöksytorvet 2011, takan ja saunan piipun pellitys ja hattu 2015, kattotikkaat, kulkusillat ja lumiesteet 2017, julkisivu huoltomaalattu 2019, rakennettu terassi 2020 (ei haettu rakennuslupaa), ilmalämpöpumppu v. 2020, pesuhuoneen laatoitus ja saunan remontti 2023. WC laatoitettu ja asennettu uusi wc-istuin 2024. Yläkerrassa eristetty seinät levytetty/tapetoitu, asennettu lattialaminaatti ja katot paneloitu. Nuohous suoritettu 8.10.2025
    EnergiatehokkuusluokkaD2018
    Huoneiston kuntoTyydyttävä

    Tontti

    Tontin pinta-ala1435 m²
    Tontin omistusOma
    KaavoitusAsemakaava
    Kaavoituksen lisätiedotLisätietoa kaavoituksesta antaa Hausjärven kunta puh. 019 758 6500
    RakennusoikeusAo eli erillispientalojen korttelialue
    Maapohjan pinta-ala1435 m²

    Varustus

    Muuta kauppaan kuuluvaaKiinteät valaisimet, verhotangot, sälekaihtimet (olohuoneessa), naulakko, ilmalämpöpumppu, takka (varaava, Nunna Uuni), lämminvesivaraaja, jätesäiliö, pihavarusteet, tiiligrilli
    TelevisioliitäntäAntenni-TV

    Tilat, materiaalit ja varustus

    KeittiöJääkaappi/pakastin, erillisuuni- ja taso (keraaminen), astianpesukone, kaapistot, lipasto, kiinteät valaisimet, varaava takka, liesituuletin (asenn. 5/2024), työtasot laminaattia.
    Lattia: Vinyyli
    KylpyhuoneKylpyhuone, suihku, pesukoneliitäntä, kiinteät valaisimet, erillinen wc, puusauna, peilit (wc:ssä).
    Lattia: Laatta
    SaunaVarustus: Puukiuas
    Lattia: Laatta
    WCLattia: Muovi
    OlohuoneLattia: Vinyyli
    MakuuhuoneAlakerrassa vinyylilattia, yläkerran toinen makuuhuone avoin aulatila, lattioissa laminaatti

    Sijainti kartalla

    Hinta- ja asumiskustannukset

    Myyntihinta99 000,00 €
    Velkaosuus0,00 €
    Velaton hinta99 000,00 €
    Lisätietoja kustannuksistaLämmityskustannukset (muu kuin sähkö): Polttopuita n. 10m³ vuodessa (nykyisellä omistajalla). Sähkönkulutus (keskimääräinen kokonaiskulutus; sisältää talous- ja lämmityssähkön): 12500 kWh/v (nykyisellä omistajalla). Puhtaanapito: Oman kulutuksen mukaan Vesi ja jätevesi: 5,22 €/m³ + perusmaksu Kiinteistövero: 86 €/ v. 2023

    Liikenneyhteydet ja palvelut

    LähipalvelutAlakoulu n. 1,5 km, Lähin n. 1 km, Keskustassa n. 1,2 km
    LiikenneyhteydetJunaseisake n. 1 km
    HarrastuksetTerveysasema n. 1,3 km

    Lisätiedot

    AsuntomyymäläKiinteistömaailma Riihimäki
    Saranen LKV Oy, Keskuskatu 13, 11100, Riihimäki
    Puh. 045 216 4472
    Lähetä sähköpostia
    VälittäjäOma välittäjäsi
    Ilmoitusta on katsottu220 kertaa
    Vastuullista välittämistä