
Krista Hakonen
yrittäjä, kiinteistönvälittäjä, LKV, LVV, KED, KiLAT, VuT
krista.hakonen@kiinteistomaailma.fi
puh. 0440355589
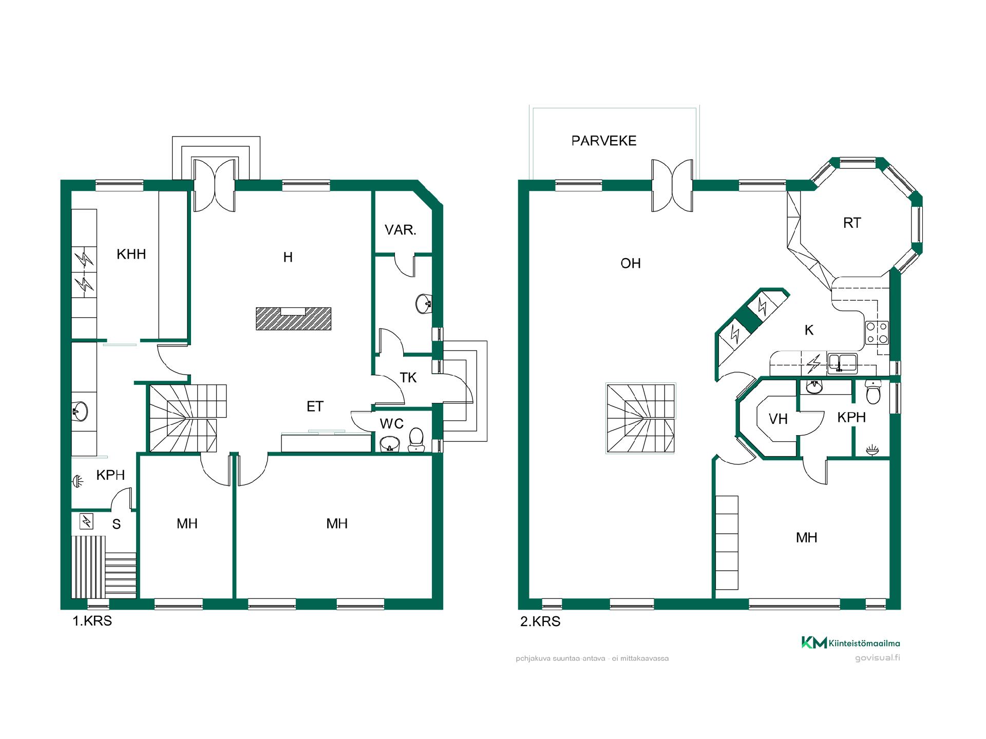
Uniikki kaksikerroksinen koti Haminan sydämessä. Keskellä Haminan historiallista kaupunkia sijaitsee tämä poikkeuksellisen viehättävä ja täysin vuonna 2022 kauttaaltaan remontoitu kaksikerroksinen koti. Pihalle saavutaan näyttävän rautaportin kautta, joka johdattaa omalle, suojaisalle piha-alueelle – harvinainen etu keskustan kodissa. Asunto on tyylikäs ja laadukkaasti viimeistelty kokonaisuus. Materiaalivalinnat ovat harkittuja, ajattoman tyylikkäitä ja sävymaailmaltaan miellyttäviä. Koti huokuu laadukasta tunnelmaa heti sisään astuttaessa. Asunnon yksi vaikuttavimmista yksityiskohdista on upea torni, johon on sijoitettu ruokailutila. Se luo arkeen ripauksen juhlavuutta ja tarjoaa puitteet unohtumattomille illallisille. Yläkerta on suunniteltu perheen yhdessäoloa varten. Avara olohuone ja keittiö muodostavat yhtenäisen kokonaisuuden. Parveke avautuu sisäpihalle. Lisäksi yläkerrassa on makuuhuone omalla kylpyhuoneella, joka tuo arkeen hotellimaista mukavuutta. Alakerrassa on tilaa elämälle ja rauhoittumiselle. Kaksi makuuhuonetta, joista toinen on poikkeuksellisen suuri. Tunnelmallisessa takka-/oleskeluhuoneessa voit rauhoittua lukemaan vaikka kirjaa. Yksi asunnon ylpeyden aihe on tyylikkäät pesutilat ja kodinhoitohuone. Alakerrassa on myös erillinen wc ja kivan kokoinen eteinen. Omassa käytössä oleva piha-alue tarjoaa yksityisyyttä ja mahdollisuuden nauttia ulkoilmasta omassa rauhassa. Asunnolla on lisäksi oma autotalli varastoineen, mikä lisää asumisen helppoutta ja käytännöllisyyttä. Sovi oma esittelyaikasi, Krista Hakonen +358 44 035 5589 krista.hakonen@km.fi