Myytävät asunnotHämeenlinnaRapamäki
TO1383701HämeenlinnaEUR120000Hämeenlinna Kasarmikatu 13
5644TO

Päivämäentie -, Rapamäki, Hämeenlinna

120 000,00 €Velaton lähtöhinta
120 000,00 €Lähtöhinta ilman velkaosuutta

Tarjouskauppa

5644Päivämäentie -, Rapamäki, Hämeenlinna
Päivämäentie -, Rapamäki, Hämeenlinna
Päivämäentie -, Rapamäki, Hämeenlinna
Päivämäentie -, Rapamäki, Hämeenlinna
Päivämäentie -, Rapamäki, Hämeenlinna
yrittäjä, kiinteistönvälittäjä, julkinen kaupanvahvistaja, YKV, LKV, LVV Arja Sarusto

Arja Sarusto

yrittäjä, kiinteistönvälittäjä, julkinen kaupanvahvistaja, YKV, LKV, LVV

arja.sarusto@kiinteistomaailma.fi

puh. 050 4333 555

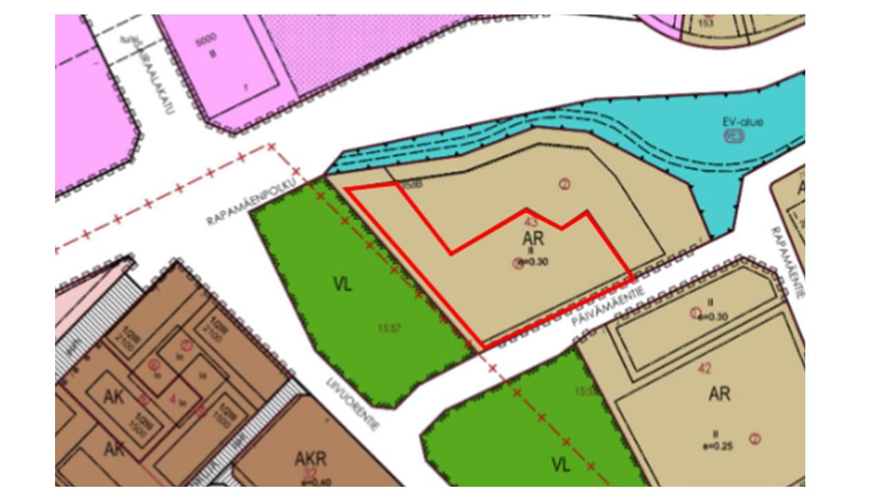
    Rakennustontti Hämeenlinnan Rapamäessä, lähellä rakenteilla olevaa Assi-sairaalaa. Asemakaavatontin koko 5644 m2 jolla rakennusoikeus e=0,3 (AR II).

    Sovi esittely

    Seuraava esittelyaika ei ole vielä sovittu.
    Ota yhteyttä ja sovi henkilökohtainen esittely!

    Myymälä

    Kiinteistömaailma Hämeenlinna Kasarmikatu 13(Asuntopalvelu Hämeenlinna Oy LKV)Kasarmikatu 13, 13100 Hämeenlinna050 4111 149
    Lue lisää

    Kiinteistön tiedot

    Kohdenumero1383701
    TalotyyppiRakennustontti
    SijaintiPäivämäentie -, 13500 Hämeenlinna
    KaupunginosaRapamäki
    KäyttövesiHSV.n liitymän hankinta
    JätevesihuoltoHSV.n liitymän hankinta hinnaston mukaisesti
    VapautuminenHeti

    Tontti

    Tontin pinta-ala5644 m²
    Tontin omistusOma
    KaavoitusAsemakaava
    Kaavoituksen lisätiedotRakennuslupa
    Rakennusoikeus0.3 e AR II
    Rannan tyyppiEi tiedossa
    Maapohjan pinta-ala5644 m²

    Sijainti kartalla

    Hinta- ja asumiskustannukset

    Lähtöhinta ilman velkaosuutta120 000,00 €
    Velkaosuus0,00 €
    Velaton lähtöhinta120 000,00 €

    Liikenneyhteydet ja palvelut

    KoulutJukolan alakoulu (n. 0.5 km)
    PäiväkotiPilke päiväkoti Jukola (kävellen) (n. 1.29 km)
    Liikenneyhteydetlinja-auto (n. 0.1 km)
    RuokakaupatS-Market Jukola (n. 0.37 km)

    Lisätiedot

    AsuntomyymäläKiinteistömaailma Hämeenlinna Kasarmikatu 13
    Asuntopalvelu Hämeenlinna Oy LKV, Kasarmikatu 13, 13100, Hämeenlinna
    Puh. 050 4111 149
    Lähetä sähköpostia
    VälittäjäOma välittäjäsi tai Arja Sarusto puh tai Whatsapp 050-4333 555, sp. arja.sarusto@km.fi Nykyinen koti vielä myymättä? Sovitaan kotikäynti ja käynnistetään myynti!
    Ilmoitusta on katsottu628 kertaa
    Vastuullista välittämistä