Tarjouskauppa

Hannu Salo
toimitusjohtaja, yrittäjä, kiinteistönvälittäjä, kaupanvahvistaja, LKV, INS, BBA, Henley Certificate of Management
hannu.salo@kiinteistomaailma.fi
puh. 050 313 7626
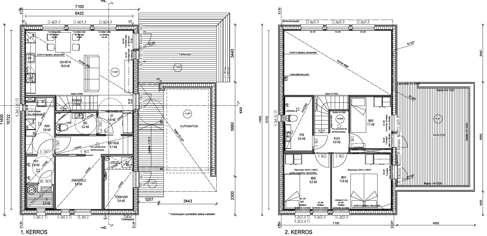
Unelmien koti Mankkaalla – Laadukasta asumista Espoossa Tervetuloa tutustumaan tähän upeaan erillistaloon Espoon sydämessä, osoitteessa Vehkamäki 1. Turvallinen ja tyylikäs koti tarjoaa ainutlaatuisen mahdollisuuden asettua viihtyisälle alueelle, jossa yhdistyvät rauhallinen sijainti ja erinomaiset yhteydet. Tämä erillistalo on suunniteltu elämää varten ja tuntuu neliömääräänsä reilusti tilavammalta. Tilojen avaruus ja tarkkaan harkittu pohjaratkaisu luovat kodikkaan tunnelman, joka hurmaa ensinäkemältä. Asunto tarjoaa erinomaiset puitteet arjen sujuvuudelle ja yhteisille hetkille. Aurinkoinen kattoterassi sekä suojainen piha terassin ja porealtaan kera tarjoaa keidaspaikkoja lapsista aikuisiin. Autokatos sähköauton latausasemalla tarjoaa autollesi parhaat olosuhteet. Sijainti halutulla Mankkaan alueella on ihanteellinen perheelle tai laatua arvostavalle asukkaalle. Alue on tunnettu viihtyisyydestään, ja kaikki tarvittavat palvelut ovat lähellä. Tässä kodissa yhdistyvät laatu ja sijainti, joka tekee asumisesta nautinnollista päivästä toiseen. Nyt on erinomainen aika tehdä päätös uudesta kodista, joka kantaa pitkälle tulevaisuuteen. Tutustu kohteeseen tarkemmin katsomalla myös videoesittely, joka avaa kodin tunnelmaa ja tiloja entistä paremmin. Tule ihastumaan tähän kokonaisuuteen paikan päälle!