
Sari Heinonen
myyntijohtaja, kiinteistönvälittäjä, kaupanvahvistaja, LKV
sari.heinonen@kiinteistomaailma.fi
puh. 050 5564120
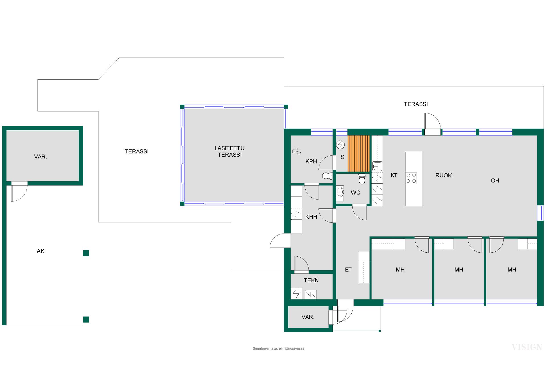
Upea 1-tasoinen koti perheelle, joka arvostaa modernia mukavuutta ja arjen luksusta. Kun etsit kotia, jossa yhdistyvät laadukas rakentaminen, energiatehokkuus ja perheelle suunniteltu toimiva arki, tämä Kuurinniityn rauhallisella ja arvostetulla alueella sijaitseva vuonna 2021 valmistunut matalaenergiatalo nousee ylitse muiden. Valinnainen vuokratontti, joten tontin voi halutessaan lunastaa omaksi, mikä antaa vapautta suunnitella tulevaisuutta juuri teille sopivalla tavalla. 2026 tontin lunastushinta on veroineen n. 185.000 €. Tontin koko 1375 m2, josta hallinnanjakosopimuksen mukaan nyt myytävän B talon hallinta-alue n. 675,6 m2. Avoin pohjaratkaisu yhdistää olohuoneen moderniin avokeittiöön ja ruokailutilaan, mikä tekee tilasta täydellisen niin arjen kiireisiin kuin juhlahetkiin. Talvella takkatuli tuo lämpöä ja tunnelmaa, ja kesähelteillä ilmalämpöpumppu pitää sisäilman miellyttävänä. Kolme tilavaa makuuhuonetta tarjoavat rauhaa ja omaa tilaa. Tyylikäs sauna ja suihkutilat kutsuvat rentoutumaan. Käytännöllinen kodinhoitohuone tekee arjen pyörittämisestä sujuvaa. Upea 130 m² terassikeidas. Talon kruunaa valtava terassi, joka on kuin oma ulko-olohuone. Drop-poreallas hemmotteluhetkiin. Lasitettu terassi ympärivuotiseen käyttöön Autokatos ja lämmin varasto tekevät arjesta helppoa. Rauhallinen ja turvallinen asuinalue, mutta kaikki palvelut ja hyvät kulkuyhteydet ovat vain lyhyen matkan päässä. Arki rullaa vaivattomasti, kun kaikki on lähellä. Tämä koti on täydellinen valinta perheelle, joka arvostaa tilaa, laatua ja energiatehokkuutta. Se ei ole vain talo – se on paikka, jossa arki muuttuu nautinnoksi ja jossa perheesi voi kasvaa ja viihtyä pitkään.