
Janne Kumpulainen
yrittäjä, toimitusjohtaja, kiinteistönvälittäjä, LKV, YKV
janne.kumpulainen@kiinteistomaailma.fi
puh. 040 753 1753
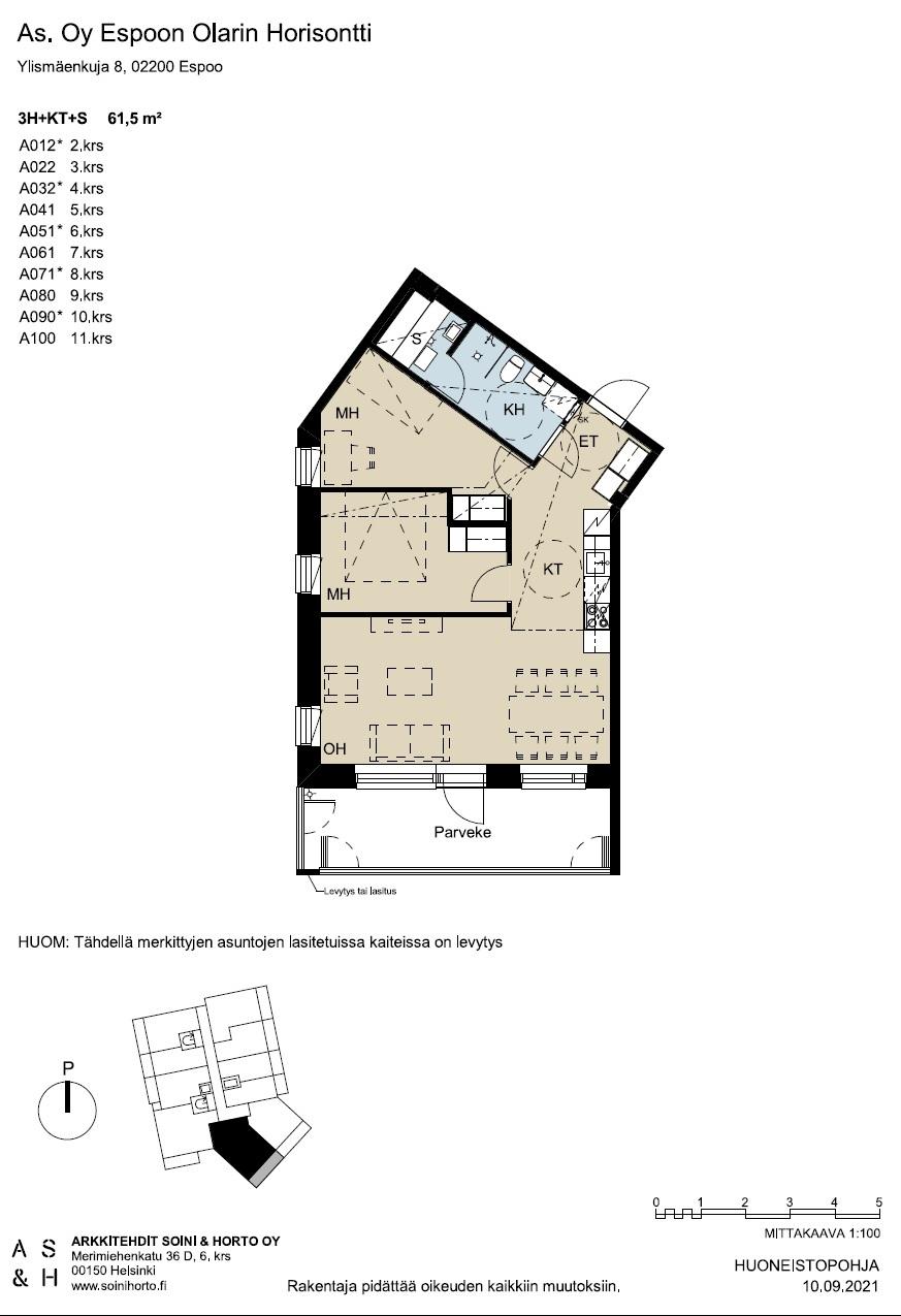
Nyt rajoitetun ajan kampanjaetuna 15% alennus velattomasta kauppahinnasta. Alennettu hinta on huomioitu ilmoituksessa! As Oy Espoon Olarin Horisontin 10. kerroksen upea kolmio, jossa vesikiertoinen lattialämmitys, korkeat ikkunat ja iso lasitettu parveke nostavat asumismukavuuden uudelle tasolle. Fiksu pohjaratkaisu, laadukkaat kalusteet ja sauna kruunaavat kokonaisuuden. Parveke avautuu kaakkoon ja etelään, joten auringosta ja valosta voi nauttia koko päivän ajan. Kellarikerrokseen sijoittuu sauna- ja kerhotilat, ulkoiluväline- ja irtaimistovarastot, ensimmäiseen kerrokseen sijoittuu ulkoiluvälinevarastot, pesula ja kuivaushuone. Yhtiön kaksi muuta saunatilaa ovat kerroksissa 5 ja 9. Yhtiössä on myös kaksi hissiä. Taloyhtiöiden yhteisen pysäköintitalon katolla on viihtyisä oleskelutila asukkaiden käytössä, mistä löytyy pöytäryhmiä, minigolfrata ja ulkokuntoilulaitteita. Autopaikat myydään omina osakkeina. Tervetuloa tutustustumaan "kenties" uuteen kotiisi!
Kohde on yhtiölainoitettu. Taloyhtiölainasta on vastuussa jokainen osakas. Jos lainaa koskevia pääomavastikkeita ei saada joidenkin asuntojen osalta muutoin perittyä, maksuvelvollisuus voi langeta viime kädessä muille osakkaille.